Drover's Meadow is a new development situated in Bronllys, Wales. Just a stone's throw away from the Brecon Beacons National Park, Drover's Meadow boasts spectacular views across the Welsh mountains. Discover a tranquil, modern way of life in these beautifully designed, spacious, elegant homes.
Property Details
Discover a tranquil, modern way of life in these beautifully designed contemporary smart homes overlooking the stunning Brecon Beacons. With meticulous detail to be eco friendly and high-spec, Drovers Meadow homes are one of a kind. Plot K is ready to move into, Viewings by appointment only
Welcome to Drovers Meadow:
The future of living.
If you find a standard new build home small and restrictive, you will be impressed by the scale of this property when compared to the average housebuilder types available. We have allowed for more space and more architectural features to open up the possibilities for flexible living.
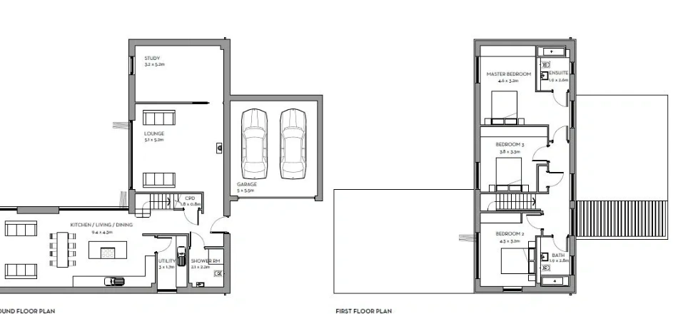
This cutting-edge designed award winning home boast 5 double bedrooms , lounge, open plan kitchen / dining area, downstairs shower room, upstairs family bathroom, En- suite, utility room, south-facing garden, off road parking and double garage with electric car charging ports.
Large doorways and walkways offer easy mobility access, and a W.C downstairs means that both the upper and lower floors are fantastic liveable spaces, even for those with limited mobility to live independently.
Open-plan living space allows for easier communication no matter whether you are in the kitchen, dining area, or living room.
Local information:
• Set against the dramatic landscape of the Brecon Beacons National Park, the homes at Drover's Meadow sit in the charming village and community of Bronllys.
• Enjoy the invigorating scenery and delightful local amenities before venturing further afield to the diverse market towns of Brecon and Hay-on-Wye, which are both home to independent local artisans, historic pubs and dynamic eateries.
• The village offers a pub, popular restaurant , petrol station and shop.
• There are a further range of shop and amenities just one mile away in the market town of Talgarth.
• Excellent links to A470, A483, A438
• Less than 5 miles from the Brecon Beacons National Park

Check out this great video